Not just any ordinary Garden Shed
Please build a shed that compliments the beautiful home you’ve built for us;
a space where our son can craft his love of gardening …..
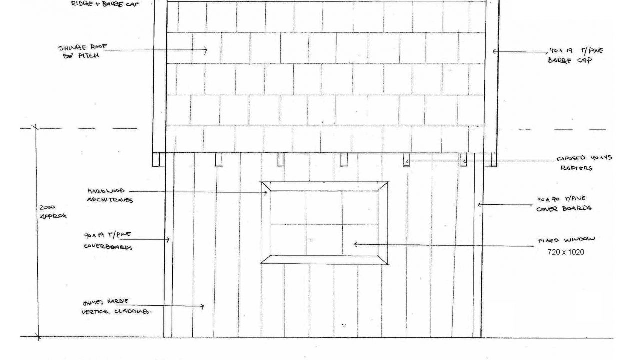
This Garden Shed was custom-designed by Woodridge Homes, Adrian Gasparini, and mimics the same architectural details of the Clients’ home.
The Clients are absolutely delighted with the end result.